Menu
Un soutien notarial éprouvé pour tous vos projets d'ordre familial, commercial et immobilier
Nos compétences
EXCLUSIVITE Valenciennes EXCLUSIVITE Valenciennes EXCLUSIVITE Valenciennes EXCLUSIVITE Valenciennes EXCLUSIVITE Valenciennes


EXCLUSIVITE Valenciennes EXCLUSIVITE Valenciennes EXCLUSIVITE Valenciennes EXCLUSIVITE Valenciennes EXCLUSIVITE Valenciennes

EXCLUSIVITE Valenciennes

219 860 € HNI
7860€ à la charge de l'acquéreur
appartement à 59300 Valenciennes
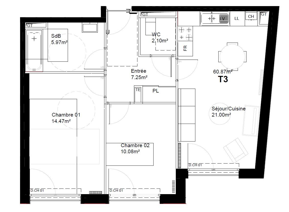
Découvrez ce magnifique appartement lumineux et parfaitement agencé, situé au 3ᵉ et dernier étage d’une résidence récente (2022) avec ascenseur. Il se compose d’une entrée avec placard, d’un WC PMR, d’une salle de bains, d’un séjour spacieux avec cuisine ouverte (meublée et semi équipée), ainsi que de deux chambres confortables. Vous bénéficierez également d’un parking aérien privatif. Les plus : ✔ Résidence récente ✔ Dernier étage ✔ Luminosité et confort ✔ Accessibilité PMR Idéal pour un premier achat ou un investissement !
Rapport énergétique :

Logement trés performant

58kWh/m² /an

11*kg CO₂/an

Logement extrèmement peu performant

Emission GES*

11kg CO₂/an

Emission GES élevée

Montant estimé des dépenses annuelles d'énergie pour un usage standard € entre et € (abonnement compris)
Jean-Baptiste PANTOU
Notaire associé à VALENCIENNES
Maxime CARRION
Notaire associé à LILLE
Julie MONCLERCQ
Assistante Juriste à LILLE
Sandrine RENAUT
Juriste à LILLE
Clara LIEBAERT
Notaire diplômée à LILLE
Amélie DENOULET
Juriste à LILLE
Marie-Hélène Cartigny
Comptabilité LILLE et VALENCIENNES
Catherine CARON
Comptabilité LILLE et VALENCIENNES
François BOROWIAK
Comptabilité LILLE et VALENCIENNES
Maxime BOURGOIN
Négociateur immobilier à VALENCIENNES
Xavier LAURENT
Négociateur immobilier à VALENCIENNES
Sandra DEL CIOTTO
Responsable gestion locative
Aurélie EBEL
Accueil - Standard
Stéphanie FINET
Notaire stagiaire à VALENCIENNES
Claire BOZIER
Juriste à VALENCIENNES
Séverine MEES
Juriste à VALENCIENNES
Charlotte COURBOT
Notaire diplômée à VALENCIENNES
Émilie BOONE
Juriste à VALENCIENNES
Claire GOSSELIN
Juriste à VALENCIENNES
Jules SOETE
Notaire à VALENCIENNES
Patricia DEGARDEZ
Formalités - publication - archives
Sandrine NOCLERCQ
Formalités - publication - archives
Stéphanie NOWAK
Formalités préalables
Étude de Valenciennes
Étude de Lille
Nous restons
disponibles pour vous
Téléphone
03 27 14 90 00
Adresse
8 Rue Georges Chastelain 59300 Valenciennes
Horaires

Lundi : 9h - 17h30

Mardi : 9h - 17h30

Mercredi : 9h - 17h30

Jeudi : 9h - 17h30

Vendredi : 9h - 17h30

 

Uniquement sur rendez-vous

Téléphone
03 27 14 90 00
Adresse
45 Boulevard de la Liberté 59000 Lille
Horaires

Lundi : 9h - 17h30

Mardi : 9h - 17h30

Mercredi : 9h - 17h30

Jeudi : 9h - 17h30

Vendredi : 9h - 17h30

 

Uniquement sur rendez-vous

Enoyer un message